ΣΤΕΡΕΩΣΗ, ΠΡΟΣΤΑΣΙΑ ΚΑΙ ΑΝΑΔΕΙΞΗ ΤΟΥ ΘΟΛΩΤΟΥ ΤΑΦΟΥ
Σε συνέχεια της από 1-9-2025 απόφασης της Υπουργού Πολιτισμού κ. Λίνας Μενδώνη με ΘΕΜΑ: Έγκριση τευχών Δημοπράτησης και διενέργειας ανοικτού διαγωνισμού κάτω των ορίων για την επιλογή αναδόχου του έργου: «ΣΤΕΡΕΩΣΗ, ΠΡΟΣΤΑΣΙΑ ΚΑΙ ΑΝΑΔΕΙΞΗ ΤΟΥ ΘΟΛΩΤΟΥ ΤΑΦΟΥ ΣΤΑ ΤΖΑΝΑΤΑ ΠΟΡΟΥ ΚΕΦΑΛΛΟΝΙΑΣ» Α/Α 3 της Πράξης «ΣΤΕΡΕΩΣΗ, ΠΡΟΣΤΑΣΙΑ ΚΑΙ ΑΝΑΔΕΙΞΗ ΤΟΥ ΘΟΛΩΤΟΥ ΤΑΦΟΥ ΣΤΑ ΤΖΑΝΑΤΑ ΠΟΡΟΥ, υπογράφηκε προχθές από την Διεύθυνση Αναστήλωσης Αρχαίων Μνημείων με την ΑΠ: 438259/ Αρ.Πρ. 26-9-2025 ΔΙΑΚΥΡΗΞΗ, με ανοικτή διαδικασία επιλογής αναδόχου, για την κατασκευή του έργου: «ΣΤΕΡΕΩΣΗ, ΠΡΟΣΤΑΣΙΑ ΚΑΙ ΑΝΑΔΕΙΞΗ ΤΟΥ ΘΟΛΩΤΟΥ ΤΑΦΟΥ ΣΤΑ ΤΖΑΝΑΤΑ ΠΟΡΟΥ ΚΕΦΑΛΟΝΙΑΣ» Εκτιμώμενης αξίας 1.117.595,00€ (πλέον Φ.Π.Α. 24%).
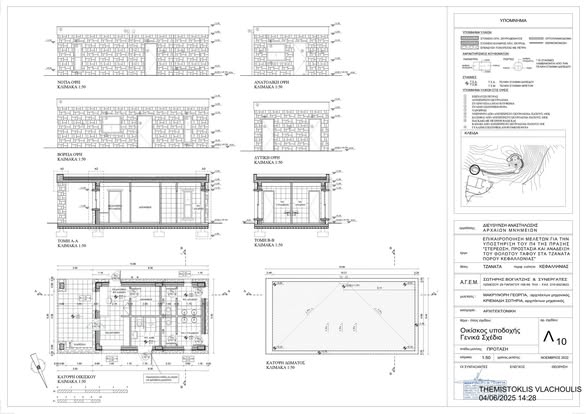
Ως ελάχιστη υποχρέωση για όλους εσάς, τους ενεργούς πολίτες και τα ΜΜΕ που δώσατε αγώνες για την προστασία και την ανάδειξη αυτού του μνημείου, σας παραθέτουμε ΠΕΡΙΛΗΨΗ της διακήρυξης του έργου, όπως και μερικές ενημερωτικές πινακίδες από την μελέτη εφαρμογής προκειμένου να έχετε γνώση των όσων θα συμβούν σε αυτόν τον χώρο.
Για κάθε φάση της εξέλιξης του έργου, όπως σας έχουμε υποσχεθεί, θα σας κρατάμε πάντα ενήμερους.
Η ίδια ελάχιστη υποχρέωση ισχύει και για όσους Δημόσιους λειτουργούς και θεσμικούς εκπροσώπους, της Ελληνικής Πολιτείας, του Υπ.Πο, της Π.Ι.Ν και της Αυτοδιοίκησης στάθηκαν αρωγοί και συμπαραστάτες αυτής της προσπάθειας προκειμένου να οδηγηθεί η υπόθεση αυτή σε αυτό το σημείο, τους οποίους θερμά ευχαριστούμε.
Τέλος, αλλά όχι τελευταίους, θερμές ευχαριστίες οφείλουμε στον ανασκαφέα του μνημείου Δρ. Λάζαρο Κολώνα, μαζί με όλο του το επιστημονικό και εργατικό προσωπικό, την οικογένεια Μηλιαρέση, όπως επίσης στους μελετητές και χορηγούς αυτού του μνημείου για την μεγάλη τους προσφορά στην πατρίδα και τον πολιτισμό της.
Υποσημείωση: Οι παρακάτω αποσπασματικές πληροφορίες έχουν αντληθεί από τους επίσημους κόμβους του Υπουργείου Πολιτισμού και της “Διαύγειας ” όπου αναρτιούνται υποχρεωτικά με σκοπό την έγκυρη και έγκαιρη ενημέρωση των πολιτών και κάθε ενδιαφερόμενου.
Περίληψη Διακήρυξης Έργου
Στερέωση, Προστασία και Ανάδειξη του Θολωτού Τάφου στα Τζανάτα Πόρου Κεφαλλονιάς (Β’ Φάση)
- Φορέας & Αναθέτουσα Αρχή
Υπουργείο Πολιτισμού / Διεύθυνση Αναστήλωσης Αρχαίων Μνημείων
Διακήρυξη μέσω (ΕΣΗΔΗΣ)
- Έργο & Περιγραφή
Τίτλος: «Στερέωση, Προστασία και Ανάδειξη του Θολωτού Τάφου στα Τζανάτα Πόρου Κεφαλλονιάς (Β’ Φάση)»
Κωδικός ΟΠΣ: 6005049
Περιλαμβάνει:
– Κατασκευή μεταλλικού στεγάστρου ημισφαιρικής μορφής διαμέτρου ~15,50 m
– Εγκατάσταση ξύλινου διαδρόμου με κιγκλίδωμα
– Στερεώσεις, αποχωματώσεις, επανεπιχώσεις, διαρρυθμίσεις εισόδου
– Κατασκευή κτηρίου εξυπηρέτησης επισκεπτών (φυλάκιο, εκδοτήριο, WC)
– Διαμόρφωση διαδρομών πρόσβασης και περίφραξη
- Προϋπολογισμός & Χρηματοδότηση
Εκτιμώμενη αξία έργου: 1.117.595,00 € πλέον ΦΠΑ 24 %
Συγχρηματοδότηση από ΕΤΠΑ και εθνικούς πόρους μέσω του Προγράμματος «Ιόνια Νησιά 2021‑2027».
- Διάρκεια Σύμβασης
540 ημερολογιακές ημέρες από την υπογραφή της σύμβασης.
- Διαδικασία & Κριτήρια Ανάθεσης
Ανοικτή διαδικασία (άρθρο 27 ν.4412/2016)
Κριτήριο: Πλέον συμφέρουσα από οικονομική άποψη προσφορά βάσει βέλτιστης σχέσης ποιότητας – τιμής.
Δεν επιτρέπονται εναλλακτικές προσφορές.
- Υποβολή & Αποσφράγιση Προσφορών
Προθεσμία υποβολής: 14/10/2025, ώρα 10:00 π.μ.
Αποσφράγιση: 14/10/2025, ώρα 11:00 π.μ.
Η υποβολή γίνεται ηλεκτρονικά μέσω της πύλης Promitheus (ΕΣΗΔΗΣ).
Οι εγγυητικές συμμετοχής κατατίθενται έντυπα εντός 3 εργάσιμων ημερών.
- Εγγυήσεις & Ισχύς Προσφορών
Εγγύηση συμμετοχής: 20.000,00 €
Ισχύς προσφορών: 12 μήνες από την υποβολή.
- Προσφυγές
Υποβάλλονται μέσω της εφαρμογής «Επικοινωνία» στην πύλη Promitheus / ΕΣΗΔΗΣ.
ΜΕΡΙΚΕΣ ΕΝΗΜΕΡΩΤΙΚΕΣ ΠΙΝΑΚΙΔΕΣ ΑΠΟ ΤΙΣ ΜΕΛΕΤΕΣ ΕΦΑΡΜΟΓΗΣ





